Nội thất biệt thự khu Hà Đô Villa Centrosa lựa chọn phong cách thiết kế nội thất Tân cổ điển làm chủ đạo với tông màu kết hợp xám – trắng mang vẻ đẹp tinh tế, thanh lịch và sang trọng.
Xem thêm: Mẫu thiết kế biệt thự Tân cổ điển/nhà phố Tân cổ điển đẹp (Update 08/2020)

PHÂN CHIA KHÔNG GIAN CHỨC NĂNG TRONG NỘI THẤT BIỆT THỰ KHU HÀ ĐÔ VILLA
Điểm đặc biệt trong thiết kế nội thất biệt thự Hà Đô Centrosa nằm ở sự phân chia và bố trí các không gian chức năng. Khác với các căn biệt thự thông thường với phòng khách rộng rãi, biệt thự Hà Đô không có phòng khách hay phòng sinh hoạt chung. Bếp ăn nằm ở tầng 4 là không gian sinh hoạt chung duy nhất.
Biệt thự gồm 4 tầng:
- Tầng 1, 2, 3: các phòng ngủ riêng biệt
- Tầng 4: bếp ăn + sân vườn
Từng không gian nội thất được tính toán kỹ lưỡng sao cho mỗi không gian mang một vẻ đẹp riêng nhưng vẫn tạo nét đẹp đồng nhất và liên kết với nhau trong tông màu xám – trắng tổng thể.
NỘI THẤT BIỆT THỰ KHU HA DO VILLAS TÂN CỔ ĐIỂN SANG TRỌNG, MANG VẺ ĐẸP THẨM MỸ CAO
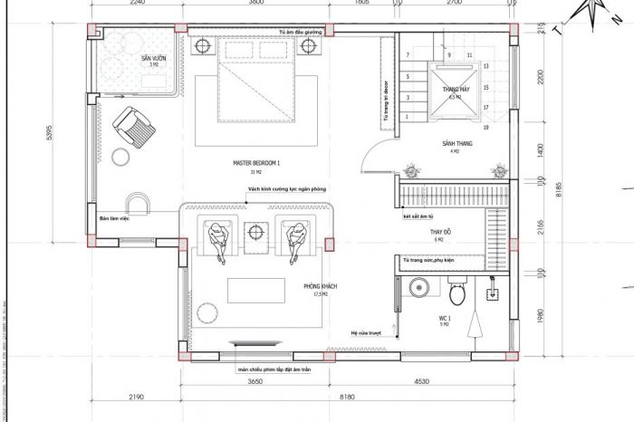
Phòng ngủ master tầng 1 tựa như một căn hộ nhỏ gồm không gian ngủ và phòng khách nhỏ được ngăn cách với nhau bởi vách kính cường lực ngăn phòng. Các vách kính trong suốt được sử dụng để đón ánh sáng tự nhiên từ bên ngoài sân vườn, đồng thời tạo sự thông thoáng cho không gian.
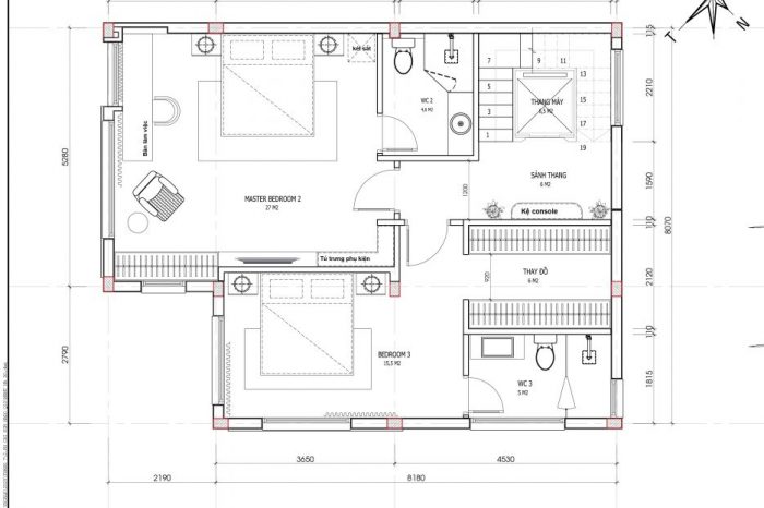
Tầng 2 gồm 2 phòng ngủ:
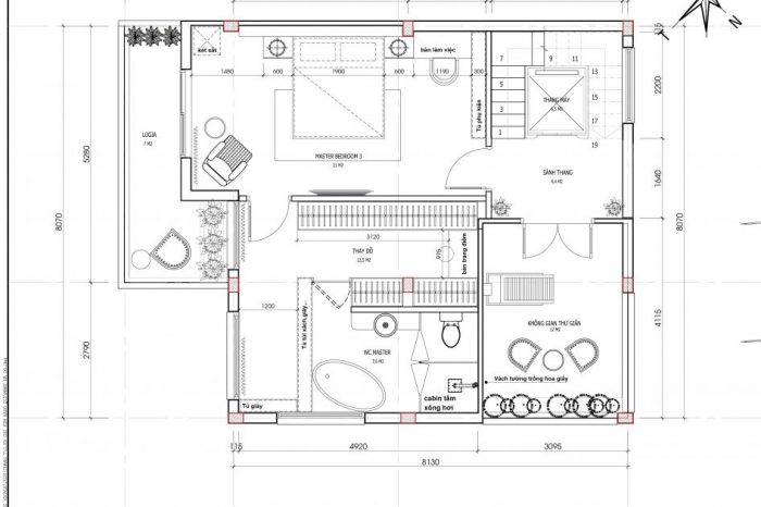
So với phòng ngủ master ở tầng 1, phòng master tầng 3 có diện tích nhỏ hơn nhằm chừa ra không gian cho logia và góc thư giãn. Không gian thư giãn với vách tường hoa giấy sẽ là nơi gia chủ có thể thả hồn vào những trang sách, nhâm nhi tách cafe hay tập thể dục rèn luyện sức khỏe.
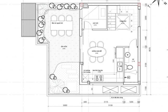
Vì là nhà biệt thự liền kề thường không có sân vườn giống như biệt thự đơn lập hay biệt thự vườn, để tạo ra khoảng xanh, sân vườn thường được bố trí ở tầng trên cùng của biệt thự. Tầng 4 là không gian bếp sinh hoạt chung của cả gia đình, gồm bếp ăn, phòng ngủ giúp việc và sân vườn với bàn ăn ngoài trời. Lan can kính được sử dụng để tránh vướng tầm nhìn vào khoảng không, tạo độ thoáng cho sân vườn.
Hướng tới sự khác biệt trong ngôn ngữ thiết kế, đề cao sự sang trọng và tinh tế, hơn cả một không gian hoàn mỹ, NEO CLASSIC luôn nỗ lực tạo ra một không gian sống mang đậm dấu ấn cá nhân của khách hàng.
Bạn có nhu cầu thiết kế và thi công nội thất, kiến trúc công trình trọn gói, xem các mẫu thiết kế biệt thự trọn gói vui lòng liên hệ với chúng tôi:
CÔNG TY NỘI THẤT NEO CLASSIC
📞 Hotline: 070.7075.007
📧 Email: neoclassic.arc@gmail.com
Website: https://noithatneo.vn/
🏢 Địa chỉ:
Văn phòng Hà Nội: Số 6, Đặng Văn Ngữ, Đống Đa, Hà Nội
Văn phòng TP.HCM: Số 6, Đường 31B – Khu C, An Phú, Quận 2, TP.HCM
Văn phòng Hải Phòng: Tầng 3 BH01.37 Vinhomes Imperia, Thượng Lý, Hồng Bàng, TP.Hải Phòng
