Biệt thự gia đình của vị khách ở thành phố biển Vũng Tàu với thiết kế kiến trúc và nội thất thiết kế biệt thự Tân cổ điển. Trên tinh thần chung hướng đến sự sang trọng, thanh lịch và tinh tế trong thẩm mỹ; thoải mái và tiện nghi trong công năng sử dụng.

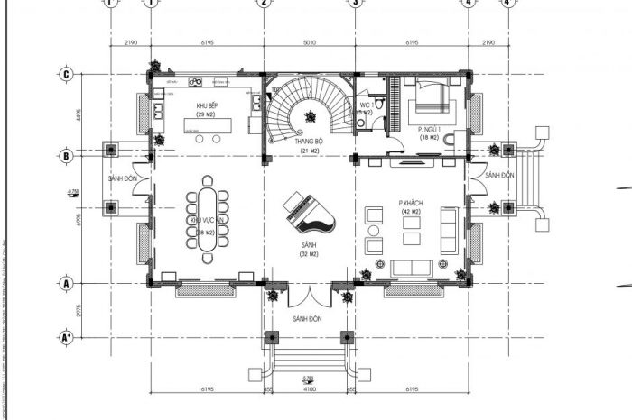
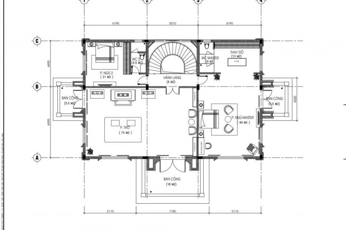
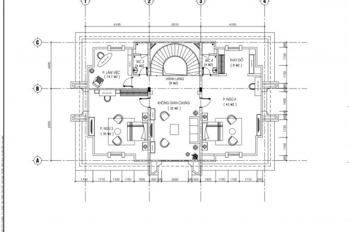
THIẾT KẾ KIẾN TRÚC BIỆT THỰ 3 TẦNG
NỘI THẤT BIỆT THỰ TÔNG XÁM THANH LỊCH VÀ SANG TRỌNG
Thử nghiệm tông xám trong thiết kế trần – tường, kết hợp với các gam màu khác như xanh nhạt và đỏ bordeaux, bên cạnh đó chú trọng vào các chi tiết decor tinh tế tạo nên không gian sống mang đầy tính trải nghiệm đẳng cấp cho gia chủ.
Phòng khách + Bếp
Phòng sinh hoạt chung + Phòng thờ
Phòng ngủ master
Các phòng ngủ khác
Phòng làm việc
Bạn có nhu cầu thiết kế biệt thự Tân Cổ Điển, thiết kế và thi công nội thất trọn gói, vui lòng liên hệ với chúng tôi:
CÔNG TY NỘI THẤT NEO CLASSIC
📞 Hotline: 070.7075.007
📧 Email: neoclassic.arc@gmail.com
Website: https://noithatneo.vn/
🏢 Địa chỉ:
Văn phòng Hà Nội: Số 6, Đặng Văn Ngữ, Đống Đa, Hà Nội
Văn phòng TP.HCM: Số 6, Đường 31B – Khu C, An Phú, Quận 2, TP.HCM
Văn phòng Hải Phòng: Tầng 3 BH01.37 Vinhomes Imperia, Thượng Lý, Hồng Bàng, TP.Hải Phòng
